19 Years of Excellence 99% Hiring Rate

Civil Projects

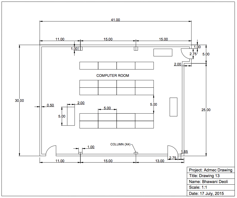
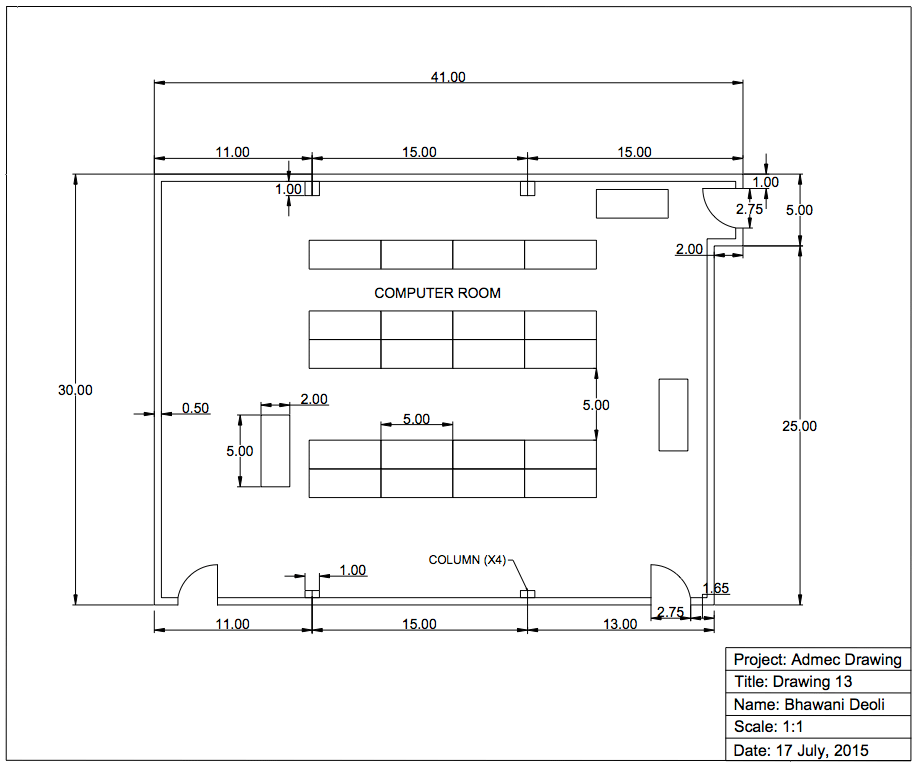
With the expanding sphere of the digital world, technology is changing with each passing day. Collaboration of engineering knowledge with digital software has become a boon for millions of engineers out there. Using the CAD software, our students have produced high quality designs. Check them out now!

Civil engineering is the combination of  art and science and when we combine digital design software with it, it produces stunning results.

Nishu TomarSr. Architecture Faculty

Related Courses

Want to create something similar and Looking for the course relevant for this type of work? Don’t worry, we’ve got a solution for you. Check out these amazing courses which fall under the same category.

Ask Us

Do you have a lot of questions on mind and feeling unanswered? Relax! Check out our FAQ section to get most of your answer to most of the questions. You can also contact us directly for any query.

Book a Demo

Wondering about our teaching structure? Sit back and Contact us! We’ll organize a demo class in the mode preferred by you either online or classroom in your considerable time slot. For us, You matters the most!

Talk to Us